Newwave Media srl

Treviso

via Zecchette

richiedi informazioni +39 348 8706224

IL PROGETTO "RESIDENCE VZ21"

Il progetto prevede la realizzazione di 6 appartamenti disposti su quattro piani fuori terra, tutti con tre camere e due bagni, uno al piano terra con giardino, due al piano primo e due al piano secondo con ampie terrazze, un attico al piano terzo, anche questo con ampia terrazza e mansardato all’interno con travi in abete. L’edificio è stato progettato con grande attenzione all’efficienza energetica, adottando soluzioni impiantistiche avanzate per ridurre al minimo i consumi energetici.

Ogni appartamento sarà dotato di un impianto di climatizzazione invernale ed estivo autonomo con pompa di calore, di un impianto fotovoltaico per la produzione di energia elettrica e di un impianto per la ventilazione meccanica controllata, che, uniti a serramenti ad elevate prestazioni, garantisce così un elevato comfort abitativo e un significativo risparmio energetico. Ciascuna unità avrà a disposizione un garage al piano terra dell’edificio e di due posti auto in proprietà.

 

 

6
APPARTAMENTI
6
GARAGE
12
POSTI AUTO

GLI APPARTAMENTI

A1
PIANO TERRA
3 CAMERE
Scopri di più
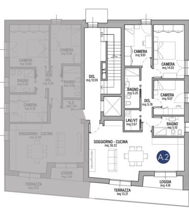
A2
PRIMO PIANO
3 CAMERE
Scopri di più
A3
PRIMO PIANO
3 CAMERE
Scopri di più
A4
SECONDO PIANO
3 CAMERE
Scopri di più
A5
SECONDO PIANO
3 CAMERE
Scopri di più
A6
ATTICO
3 CAMERE
Scopri di più

LOCATION

Situato in una posizione strategica, vicino al centro storico e ai principali servizi, è immerso in un contesto tranquillo e residenziale senza rinunciare alla vicinanza alla città.

Contatti

SARTORATO & TRONCHIN
Piazza IV Novembre, 12 - 30020 Marcon (VE)
Via Torre, 8 - 31032 Casale Sul Sile (TV)

Tel. 041 4569593 - [email protected]

RICHIEDI INFORMAZIONI