Newwave Media srl

Casale

Via Murano

richiedi informazioni +39 348 8706224

IL PROGETTO RESIDENZIALE A CASALE

Il progetto edilizio prevede la costruzione di un edificio residenziale di cinque appartamenti sviluppati su tre piani fuori terra che si inseriscono nel contesto tranquillo del paese di Casale Sul Sile a pochi passi dal centro.

Ogni appartamento gode di zone soggiorno particolarmente confortevoli comunicanti con il giardino o con le ampie ed abitabili terrazze dei piani superiori. Al piano terra dell’edificio sono stati ricavati i garage mentre sull’area esterna sono stati ricavati due posti auto per ogni alloggio.

L’impiantistica all’avanguardia che prevede l’utilizzo di fonti rinnovabili per la produzione di energia elettrica, l’isolamento acustico e l’isolamento termico di elevate prestazioni, rendono gli alloggi particolarmente confortevoli e adatti a chi ricerca tranquillità e riservatezza. L’intero edificio risulta in classe energetica A4.

5
UNITÀ ABITATIVE
10
POSTI AUTO
5
GARAGE

GLI APPARTAMENTI

5 Unità abitative esclusive

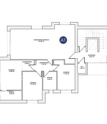
A1
PIANO TERRA
3 CAMERE
Scopri di più
A2
PRIMO PIANO
3 CAMERE
Scopri di più
A3
PRIMO PIANO
2 CAMERE
Scopri di più
A4
SECONDO PIANO
3 CAMERE
Scopri di più
A5
SECONDO PIANO
2 CAMERE
Scopri di più

LOCATION

In posizione privilegiata a Casale sul Sile, a pochi passi dal centro del paese e comodo ai servizi.

Contatti

SARTORATO & TRONCHIN
Piazza IV Novembre, 12 - 30020 Marcon (VE)
Via Torre, 8 - 31032 Casale Sul Sile (TV)

Tel. 041 4569593 - [email protected]

RICHIEDI INFORMAZIONI